2 pokoje z garderobą i balkonem | Wilda | wysoki parter
Przestronne mieszkanie na wysokim parterze, o funkcjonalnym i niezależnym układzie, położone na poznańskiej Wildzie. Lokal zapewnia wygodę codziennego użytkowania oraz duże możliwości aranżacyjne.
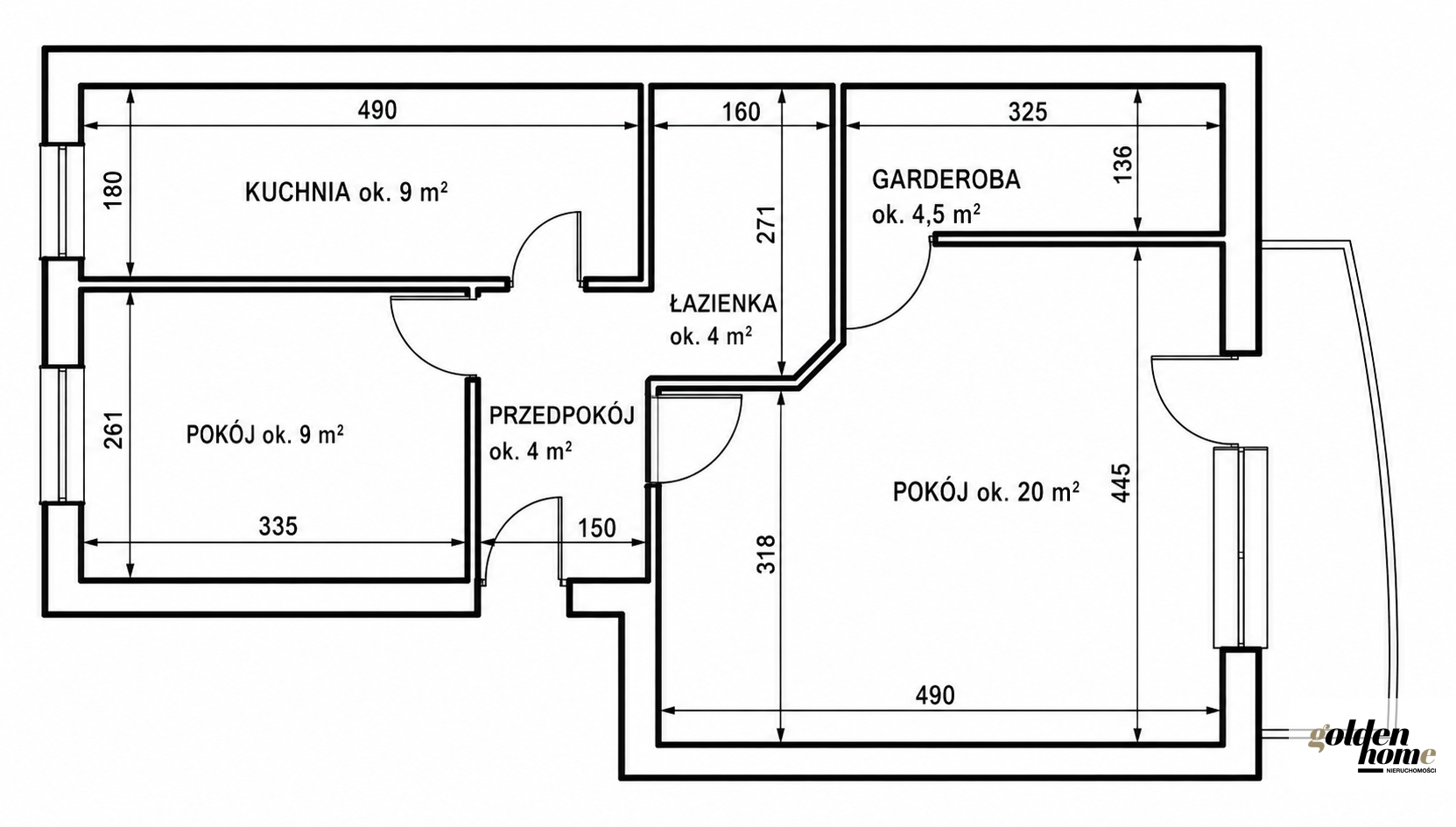
W skład mieszkania wchodzą:
• salon o powierzchni ok. 20 m² z wyjściem na balkon,
• pokój ok. 9 m², idealny na sypialnię lub gabinet,
• oddzielna, jasna kuchnia ok. 9 m²,
• łazienka ok. 4 m²,
• przedpokój ok. 4 m²,
• garderoba ok. 4,5 m² zapewniająca dodatkową przestrzeń do przechowywania.
Niezależny układ pomieszczeń z wejściem do każdego z nich z przedpokoju gwarantuje komfort i prywatność. Ekspozycja okien w salonie na południowy zachód sprawia, że mieszkanie jest jasne i dobrze doświetlone przez większą część dnia. Widok skierowany jest na sąsiednią zabudowę oraz spokojne, wewnętrzne części osiedla.
Do lokalu przynależy piwnica. Ogrzewanie miejskie.
Budynek
Czteropiętrowy blok z 1996 roku, zlokalizowany na terenie zamkniętym. Osiedle jest monitorowane. Wjazd na posesję odbywa się przez bramę sterowaną pilotem, co zwiększa bezpieczeństwo i komfort mieszkańców. Do dyspozycji mieszkańców pozostają miejsca parkingowe na terenie osiedla.
Lokalizacja
Świetna lokalizacja łącząca spokój z wygodą miasta. W zasięgu kilku minut pieszo znajdują się przystanki tramwajowe i autobusowe (ok. 3–7 min), co zapewnia szybki dojazd do centrum.
W najbliższej okolicy:
• sklepy (Biedronka, Lidl, Żabka) – 2–7 min
• Rynek Wildecki – ok. 10 min
• park i tereny zielone – 10–15 min
Wszystko, co potrzebne na co dzień, znajduje się w zasięgu krótkiego spaceru, co pozwala funkcjonować bez konieczności korzystania z samochodu.
Idealna lokalizacja zarówno do zamieszkania, jak i pod inwestycję.
Zapraszam na prezentację, Jarosław Mazurek, Golden Home Nieruchomości, tel. 726-101-001
