2 POKOJE | WYSOKI STANDARD | BALKON | PODOLANY – UL. JASIELSKA
Zapraszam do zapoznania się z ofertą eleganckiego mieszkania dwupokojowego z aneksem kuchennym i balkonem, położonego w spokojnej części poznańskich Podolan, przy ul. Jasielskiej.
Mieszkanie wykończone w wysokim standardzie, z dbałością o detale i estetykę. Gotowe do zamieszkania od zaraz – bez dodatkowych nakładów.
_____________________________________________________________
OPIS MIESZKANIA
Wnętrze utrzymane w jasnej, ponadczasowej kolorystyce z modnymi sztukateriami i dekoracyjnym tynkiem. Całość tworzy spójną, elegancką przestrzeń z przytulnym charakterem.
Na podłogach wysokiej klasy panele w ciepłym odcieniu drewna.
Duże okna z wyjściem na balkon zapewniają doskonałe doświetlenie części dziennej. Ekspozycja zachodnia – mieszkanie jasne i słoneczne w drugiej części dnia.
W salonie zamontowana klimatyzacja.
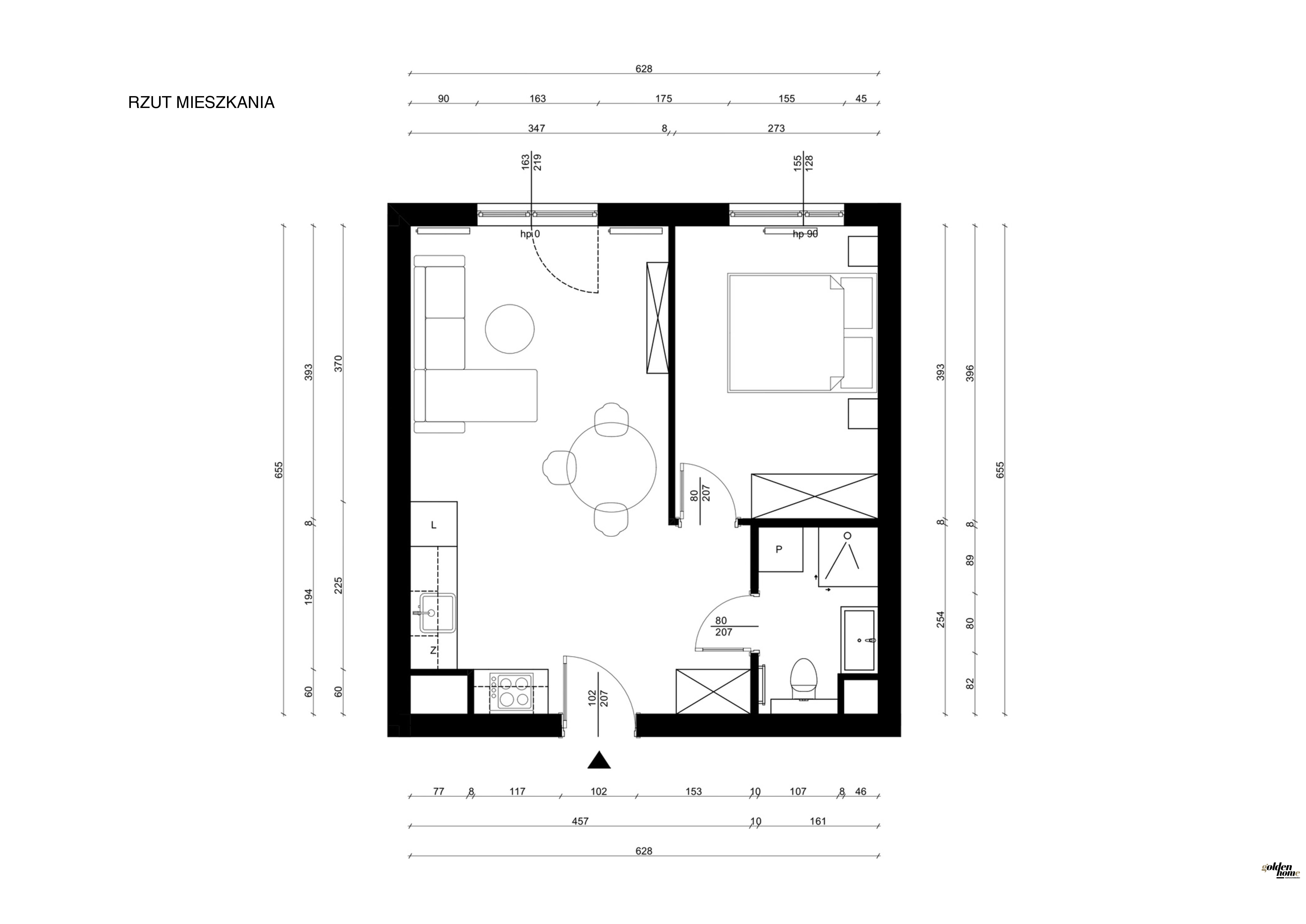
W skład mieszkania wchodzi:
• salon z aneksem kuchennym – 24,96 m²
• sypialnia – 10,72 m²
• łazienka – 3,87 m²
• balkon – 3,00 m²
_____________________________________________________________
WYPOSAŻENIE W CENIE
Mieszkanie sprzedawane jest z pełnym umeblowaniem widocznym na zdjęciach. W salonie znajduje się wygodna sofa z funkcją spania, szafka RTV oraz rozkładany stół z czterema krzesłami, co pozwala komfortowo przyjmować gości.
Aneks kuchenny został zabudowany do sufitu i wyposażony w komplet sprzętów AGD – piekarnik, płytę indukcyjną, okap, zmywarkę oraz lodówkę w zabudowie. Całość tworzy funkcjonalną i estetyczną przestrzeń do codziennego użytkowania.
W korytarzu zaprojektowano pojemną szafę w zabudowie oraz lustro, które dodatkowo optycznie powiększa przestrzeń.
Do mieszkania przynależy miejsce postojowe w podziemnej hali garażowej – dodatkowo płatne 40.000 zł.
_____________________________________________________________
LOKALIZACJA
Spokojna, rozwinięta część Podolan.
W pobliżu:
• Galeria Handlowa Podolany
• szkoła podstawowa i przedszkole
• przystanek autobusowy
• przystanek Poznańskiej Kolei Metropolitalnej
Zapraszam do kontaktu i umówienia się na prezentację – to mieszkanie warto zobaczyć na żywo – Jarosław Mazurek, Golden Home Nieruchomości tel. 726-101-001
